- Woonoppervlakte
- Circa 155 m²
- Perceeloppervlakte
- Circa 272 m²
- Bouwjaar
- Gebouwd in 1948
- Aantal kamers
- 6 kamers (4 slaapkamers)
Dorpsweg 12 te Callantsoog
Voor wie de drukke stad achter zich wil laten en 365 dagen per jaar wil wonen met een vakantiegevoel
Aan de Dorpsweg 12 te Callantsoog bevindt zich deze karaktervolle hoekwoning uit 1948. Een woning met een ziel, gelegen op een unieke plek waar rust, ruimte en natuur samenkomen. Voor mensen die uit de hectiek van de stad komen en verlangen naar stilte, frisse zeelucht en een ontspannen leefomgeving, is dit zonder twijfel een oase van rust.
Callantsoog staat bekend om zijn brede stranden, duinen en gemoedelijke dorpssfeer. Vanuit deze woning loopt u binnen enkele minuten naar het strand en de duinen, terwijl ook supermarkt, winkels en restaurants zich op zeer korte loopafstand bevinden. U woont hier buiten, maar nooit afgelegen. Precies zoals het bedoeld is.
De woning is gelegen op een perceel van circa 253 m² en beschikt over een gebruiksoppervlakte wonen van 155 m² en een bruto inhoud van circa 521 m³, gemeten conform NEN2580. Met vier slaapkamers, een royale leefkeuken en een praktische indeling is dit een volwaardige gezinswoning, geschikt voor permanente bewoning of als comfortabel tweede huis.
Een bijzonder pluspunt is de aanwezigheid van twee volledig privé parkeerplaatsen op eigen terrein. In een kustdorp als Callantsoog is dit een zeldzaam en zeer comfortabel voordeel.
Indeling
Begane grond
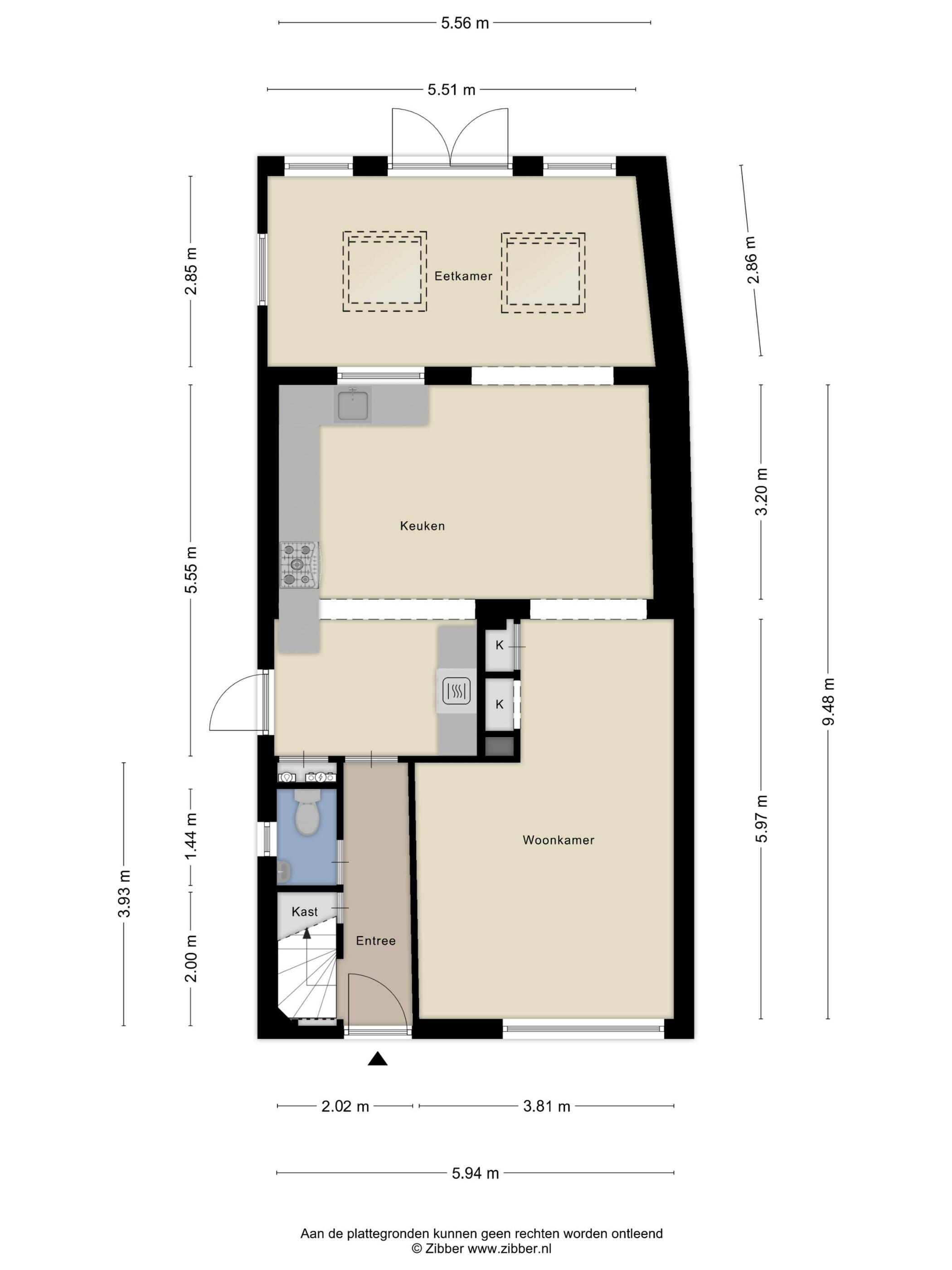
Via de entree komt u in de hal met trapopgang naar de eerste verdieping, toiletruimte en vaste kastruimte.
De woonkamer is gelegen aan de voorzijde van de woning en meet circa 3,81 m x 5,97 m (ca. 22,7 m²). Een prettige, lichte ruimte met voldoende privacy ten opzichte van de keuken.
De keuken bevindt zich centraal in de woning en loopt door in de aanbouw aan de achterzijde. De totale leefkeuken heeft een afmeting van circa 5,55 m x 3,20 m, goed voor ongeveer 30 m².
De keuken is voorzien van een inbouwkeuken (2010) met diverse inbouwapparatuur, waaronder koelkast/vriezer, oven, magnetron/oven, vaatwasser en een Amerikaans gasfornuis. Vanuit de keuken is er een aparte zij-entree vanuit de tuin. De aanbouw beschikt over openslaande deuren naar de achtertuin, waardoor binnen en buiten mooi in elkaar overlopen.
Eerste verdieping
De eerste verdieping biedt ruimte aan drie slaapkamers, een badkamer en een aparte wasruimte.
Slaapkamer 1 (voorzijde): circa 3,54 m x 2,62 m (ca. 9,3 m²)
Slaapkamer 2 (achterzijde): circa 3,08 m x 3,20 m (ca. 9,9 m²)
Slaapkamer 3 (hoofdslaapkamer): circa 3,08 m x 5,05 m (ca. 15,5 m²)
De badkamer, vernieuwd in 2022, meet circa 2,97 m x 2,00 m (ca. 6 m²) en is voorzien van douche, toilet en wastafel. Daarnaast is er een separate wasruimte voor wasmachine en droger.
Tweede verdieping
Via een vaste trap bereikt u de tweede verdieping.
Hier bevindt zich een voorzolder, een vierde slaapkamer van circa 3,52 m x 3,11 m (ca. 11 m², gemeten boven 1,50 m hoogte) en meerdere bergruimtes onder het schuine dak.
In een aparte ruimte is de Intergas CW5-cv-ketel (2023) geplaatst, welke altijd professioneel is onderhouden.
Buitenruimte en berging
De woning beschikt over een achter- en zijtuin met een losse houten berging. De tuin is netjes onderhouden, maar biedt ruimte voor eigen invulling. De voortuin is aangelegd in duinstijl en sluit aan bij de natuurlijke omgeving.
De vrijstaande berging meet circa 2,37 m x 2,30 m en heeft een oppervlakte van 5,4 m². Deze is aangemerkt als externe bergruimte conform NEN2580.
Aan de zijkant van het perceel bevinden zich de twee privé parkeerplaatsen, uitsluitend bestemd voor deze woning.
Oppervlakten (conform meetrapport)
Gebruiksoppervlakte wonen: 147,1 m²
Externe bergruimte: 5,4 m²
Bruto vloeroppervlak: 186,3 m²
Bruto inhoud woning: 520,99 m³
Vraagprijs en aanvaarding
De woning wordt aangeboden met een bieden-vanaf-prijs van € 439.500,- kosten koper.
Dit betreft een startprijs en geen vaste vraagprijs.
De woning is per direct beschikbaar.
As-is verkoop
De woning wordt verkocht “as is, where is”. Dit betekent dat de woning wordt geleverd in de staat waarin deze zich bevindt ten tijde van de koop, met alle zichtbare en onzichtbare gebreken. Verkoper geeft geen garanties of vrijwaringen anders dan wettelijk verplicht. Koper verklaart zich hiermee uitdrukkelijk bekend en akkoord.
Disclaimer
Deze verkoopinformatie is met zorg samengesteld aan de hand van beschikbare gegevens en een meetrapport conform NEN2580 / NTA 2581. Desondanks kunnen aan deze informatie geen rechten worden ontleend. Alle maten en oppervlakten zijn indicatief. Indien voor koper van belang, wordt koper geadviseerd deze zelf te (laten) controleren. De koopovereenkomst komt pas tot stand na ondertekening door beide partijen.
Wonen nabij Duinen en zee
Overdracht
- Vraagprijs
- € 439.500 k.k.
- Status
- Beschikbaar
- Aanvaarding
- Direct
Bouw
- Object type
- Eengezinswoning, 2-onder-1-kapwoning
- Soort bouw
- Bestaande bouw
- Bouwjaar
- 1948
- Soort dak
- Zadeldak bedekt met pannen
Oppervlakte en inhoud
- Woonoppervlakte
- 155 m²
- Perceeloppervlakte
- 272 m²
- Inhoud
- 521 m³
- Externe bergruimte
- 5 m²
Indeling
- Aantal kamers
- 6 kamers (4 slaapkamers)
- Aantal badkamers
- 1 badkamer
- Badkamervoorzieningen
- Inloopdouche, hangend toilet, wastafel, wastafelmeubel
- Voorzieningen
- Tv kabel, glasvezel kabel, dakraam, mechanische ventilatie, natuurlijke ventilatie
Energie
- Energielabel
- D
- Energielabel registratie
- 15-12-2025
- Isolatie
- Hr-glas, vloerisolatie, dakisolatie, muurisolatie
- Verwarming
- CV-ketel
Buitenruimte
- Ligging
- In bosrijke omgeving, bij ov voorziening, bij school, zeezicht, vrij uitzicht
- Tuin
- Achtertuin
- Afmetingen achtertuin
- 42 m² (7 meter diep en 6 meter breed)
- ligging tuin
- Gelegen op het zuidoosten en bereikbaar via achterom
Bergruimte
- Schuur / berging
- Vrijstaand hout
Parkeergelegenheid
- Soort parkeergelegenheid
- Op eigen terrein
Energieverbruik in Callantsoog
Energielabel deze woning
Energielabel D
Publicatie energielabel: 15-12-2025
Stroomverbruik per jaar
(Gemiddelde twee onder een kap in Callantsoog)
Gasverbruik per jaar
(Gemiddelde twee onder een kap in Callantsoog)
* Cijfers zijn afkomstig van het CBS en bedoeld als indicatie en kunnen verschillen voor deze woning
Indicatie hypotheeklasten
Eigen inleg:
Spaargeld / overwaarde
Rente:
Laagste 10-jaars rente
Laagste 10-jaars rente
2,78% - Centraal Beheer Groen... - NHG
3,04% - Centraal Beheer Groen... - 80%
Laagste 20-jaars rente
3,29% - Centraal Beheer Groen... - NHG
3,52% - Centraal Beheer Groen... - 80%
Laagste 30-jaars rente
3,41% - Centraal Beheer Groen... - NHG
3,7% - Argenta Groen Hypotheek... - 80%
Hypotheek:
Bruto maandlasten: € 0 p/m
Netto maandlasten: € 0 p/m
Hoe berekenen we dit?
Het rentepercentage is gebaseerd op de laagste 10 jaars vaste rente voor één hypotheekdeel. De vermelde rente (3.04% zonder NHG) is gecontroleerd op 27-02-2026. Deze berekening is gebaseerd op een annuïteitenhypotheek die volledig wordt afgelost, waarbij de maandlasten gedurende de gehele looptijd gelijk blijven. De werkelijke rente en netto maandlasten kunnen variëren, afhankelijk van uw persoonlijke situatie en de hypotheekverstrekker. Raadpleeg een financieel adviseur voor een nauwkeurige berekening en advies. Aan deze berekening kunnen geen rechten worden ontleend; het dient enkel als indicatie.
Documentatie
Kadastrale kaart
Leefomgeving
Plattegronden PDF
WOZ waarderapport
BAG uittreksel
Brochure
Energielabel
Bezichtiging
Bod uitbrengen
Waardebepaling
Zoekopdracht
Alles downloaden
Zonnegrenzen bekijken
Inwoners in Callantsoog
Cijfers voor postcodegebied 1759
- Totaal aantal inwoners
- 2380 inwoners
- Mannen
- 49%
- Vrouwen
- 51%
Inwoners in Callantsoog
Cijfers voor postcodegebied 1759
- tot 15 jaar
- 10%
- 15 tot 25 jaar
- 11%
- 25 tot 35 jaar
- 14%
- 45 tot 65 jaar
- 32%
- 65 en ouder
- 32%
Huishoudens in Callantsoog
Cijfers voor postcodegebied 1759
- Eenpersoons zonder kinderen
- 35%
- Meerpersoons zonder kinderen
- 37%
- Huishoudens zonder kinderen
- 72%
Huishoudens in Callantsoog
Cijfers voor postcodegebied 1759
- Huishoudens met één kind
- 7%
- Huishoudens met meerdere kinderen
- 21%
- Huishoudens met kinderen
- 28%
Woningen in Callantsoog
Cijfers voor postcodegebied 1759
- Woningen voor 1945
- 12%
- Woningen tussen 1945 en 1965
- 15%
- Woningen tussen 1965 en 1975
- 29%
- Woningen tussen 1975 en 1985
- 21%
- Woningen tussen 1985 en 1995
- 7%
Woningen in Callantsoog
Cijfers voor postcodegebied 1759
- Woningen tussen 1995 en 2005
- 11%
- Woningen tussen 2005 en 2015
- 5%
- Woningen na 2015
- 1%
- Huurwoningen
- 30%
- Koopwoningen
- 70%
Overige in Callantsoog
Cijfers voor postcodegebied 1759
- Gemiddelde WOZ waarde
- € 255.000,-
- Personen onder de 65 met uitkering
- Niet beschikbaar
Overige in Callantsoog
Cijfers voor postcodegebied 1759
- Adressen per km²
- 352
- Stedelijkheid (schaal 1 op 5)
- 20%
De Huur- en Koopwoningbemiddelaar & Gewoon VvE Beheer
Indien u vragen heeft of u wilt een bezichtiging inplannen, dan kunt u gebruik maken van het formulier hiernaast. Er zal daarna op korte termijn contact met u worden opgenomen.
Het Nieuwe Diep 33
1781AD, Den helder
(+31)223-694396 info@dekoopwoningbemiddelaar.nl www.dekoopwoningbemiddelaar.nlContact opnemen
De Koopwoningbemiddelaar
Ben je klaar om jouw woning te verkopen? Onze ervaren makelaars nemen je mee in het hele verkoopproces. Van het bepalen van de juiste vraagprijs tot het promoten van jouw woning en de afwikkeling van de verkoop, wij zorgen ervoor dat je zorgeloos en succesvol je woning kunt verkopen.
STAP 1: Bepaling van de vraagprijs
Het succesvol verkopen van je woning begint bij het vaststellen van de juiste vraagprijs. Onze makelaars doen een grondige marktanalyse en evalueren de staat en locatie van jouw woning om een competitieve prijs te bepalen. Met onze gratis waardebepaling krijg je een realistisch beeld van wat jouw woning op de huidige markt waard is.
STAP 2: Verkoopstrategie ontwikkelen
Een doeltreffende verkoopstrategie is cruciaal om je woning onder de aandacht te brengen van de juiste kopers. We werken nauw met je samen om jouw woning op de beste manier te positioneren en presenteren, rekening houdend met jouw doelgroep. Onze makelaars maken gebruik van innovatieve marketingtechnieken om een breed publiek te bereiken en het beste resultaat te behalen.
STAP 3: Presentatie van de woning
Een aantrekkelijke presentatie van jouw woning is de sleutel tot succes. Wij zorgen ervoor dat jouw woning opvalt in de markt met hoogwaardige foto's, overtuigende beschrijvingen en een doordachte online en offline marketingcampagne.
STAP 4: Voorbereiding op de bezichtigingen
Een opgeruimde, aantrekkelijke woning maakt een sterke eerste indruk op potentiële kopers. Onze makelaars bieden praktische tips en begeleiding om ervoor te zorgen dat jouw woning op zijn best wordt gepresenteerd.
STAP 5: Bezichtigingen
Bij het inplannen en uitvoeren van bezichtigingen nemen we jouw wensen en schema in acht. We zorgen ervoor dat potentiële kopers een rondleiding krijgen die hen een goed beeld geeft van de mogelijkheden van jouw woning.
STAP 6: Onderhandelingen
Zodra er een bod op jouw woning komt, begeleiden onze makelaars je door de onderhandelingen. We beoordelen elk bod zorgvuldig en bieden advies om ervoor te zorgen dat je het beste resultaat krijgt.
STAP 7: Afwikkeling van de verkoop
Wanneer er overeenstemming is bereikt over de prijs, zorgen we ervoor dat alle nodige documentatie correct en tijdig wordt opgesteld en verzonden naar de notaris.
Nieuwste reviews
-
VvE Kruiswijk-III
Sinds vorig jaar zijn we overgestapt; daarvoor deden we het beheer vanaf de nieuwbouw zelf. Door tijdgebrek bleek dit geen goede beslissing....
-
Geert-Jan Schaaij
Wij zijn zeer tevreden met de overstap van een andere beheerder, samen met onze 19 andere eigenaren. De bereikbaarheid is uitstekend en pro...
-
Bestuur VvE Koningshoeve
We zijn gevraagd onze ervaringen met onze VvE-beheerder te delen. Als vereniging met 43 appartementen hebben we niets aan te merken op deze...